
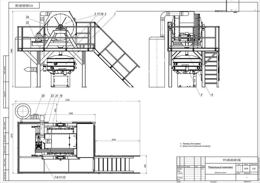
Компания «ПРОТЕМ» выполняет проекты по техническим заданиям и чертежам Заказчиков, что обеспечивает выполнение требуемых технологических задач. Спецификация оборудования может быть изменена в соответствии с требованиями и условиями производства Заказчика.